项目经理:夏正
设计师:唐颖哲
业主:陆**
开工时间:2019-06-23
完工时间:2019-09-08

项目经理:夏正

安装已全部结束,修补一下就可以竣工验收了

项目经理:夏正

安装材料陆续进场安装中,安装全部结束后墙面面涂再刷一遍就可以竣工验收了

项目经理:夏正

油漆验收完成,地板也铺好了,接下来等客户柜子装好了水电就可以安装了

项目经理:夏正

油漆工师傅阴阳角做好,批嵌砂磨已结束,墙顶面油漆验收完成,可以刷面涂了

项目经理:夏正

油漆材料已进场,油漆工师傅墙顶面铲好后就可以整角批墙了

首席设计师:唐颖哲

泥木已经结束,效果不错接下来主体工程就只剩下油漆了,师傅们继续加油!

项目经理:夏正

泥木工程今天结束,明天泥木验收

项目经理:夏正

瓦工师傅墙面粉刷结束,墙地砖已送到,墙砖铺贴中

项目经理:夏正

地暖管排好后地面找平已完成,瓦工师傅正在修补粉刷,墙地砖送到后就可以铺贴了

项目经理:夏正

地面防水已做好了,接下来做地暖

项目经理:夏正

水电工师傅排管布线结束了,第三方监理验收均符合规范

首席设计师:唐颖哲

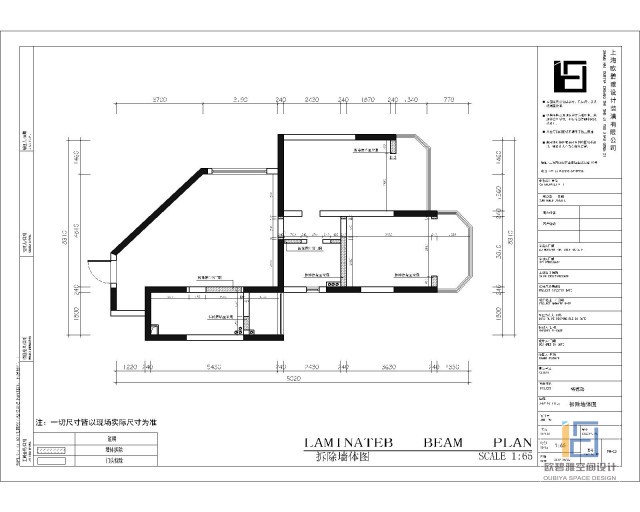
拆除阶段已经结束,水电已经定位开槽开好。

项目经理:夏正

电工师傅线管槽已开结束,场地清扫干净。水电材料也已送到,接下来排管布线

项目经理:夏正

设计师和客户现场定位确认已结束,工人正在开线管槽

项目经理:夏正

拆旧已完成,场地清扫干净,瓦工师傅墙也砌好了

项目经理:夏正

拆旧进行中

首席设计师:唐颖哲

恭祝裕德路陆先生开工大吉!

项目经理:夏正

恭祝开工大吉!一帆风顺!

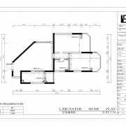
首席设计师:唐颖哲

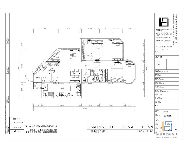
户型采光通风好,但是客餐厅有点瑕疵,所以扩大厨房门洞补充客餐厅的采光和通风,荆门可以直接看到过道和整个的客餐厅,建议做个玄关,层高不够高不建议吊顶下来太多,可以适当做一些功能性和区域性的吊顶。